АРБО 69 №871

Цена строительства от 5 900 000 ₽* * Стоимость не является окончательной
Заявка на консультацию
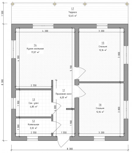
  • Общая площадь 69 м2
  • Длина 8.3 м
  • Ширина 9.8 м
  • Материал стен Газобетон/пеноблок
  • Количество этажей 1
  • Подвал Нет
  • Мансарда без мансарды
  • Гараж Нет
  • Терраса Да
  • Проживание Круглогодичное
  • Количество комнат 3
  • Количество спален 2
  • Количество санузлов 1
  • Вид проекта дом
  • Застройщик Арболит-Строй
  • Архитектурный стиль Классический
  • Отделка фасада Штукатурка
  • Крыша Вальмовая
  • Можно купить домокомплект Нет
  • Модульный тип строения Нет
Планировки
Описание проекта

Фундамент ростверк+ЖБИ Сваи (300 бетон), ЖБИ плиты перекрытия, Стены Арболит (300), 4х скатная вальмовая крыша (Металлочерепица), снегозадержатели, Септик переливной 6 кубов. Скважина, Входная дверь с терморазрывом, 2х контурный котёл (Горячая вода+отопление), Теплый пол. Окна ПВХ (6 камер), Электрика ГОСТ, Наружная штукатурка. 

Вас может заинтересовать
Вас может заинтересовать

Выбор местоположения

Задать вопрос / написать нам

E-mail: domgis@mail.ru

Мы свяжемся с Вами в течение дня.

Тех. поддержка
Предмет обращения:
Тукущая страница

Мы свяжемся с Вами в течение дня.

Уведомление
Предмет обращения:
Тукущая страница
Обратный звонок
Обратный звонок
Выберите ваш город
Пожаловаться

Объявление опубликовано.
Изменения сохранены

Период публикации - бессрочный, при условии подтверждения актуальности каждые 50 дней. Уведомления будут отправляться на Вашу электронную почту.

Выберите причину снятия с публикации

Снятые с публикации объявления не участвуют в поиске и недоступны для подробного просмотра.

Для повторной публикации нажмите «Вернуть в публикацию»